KLAR Architekturbüro Lederer
Katja Lederer, Architektin
Bayernstraße 60
67061 Ludwigshafen
T: 0621 - 56 10 48 4
M: 0171 - 51 10 696
Erweiterung Villa im Schwarzwald
Das historische Gebäude wird komplett erhalten, der Anbau aus den 80er Jahren wird zurückgebaut und den heutigen Bedürfnissen angepasst und erweitert. Der neue Baukörper erstreckt sich von der Parkanlage über 2 Geschosse und verbindet sich im Erdgeschoss mit der historischen Villa. Neu und Alt setzen sich in der Formensprache deutlich voneinander ab und bilden durch Ihrer Gegensätzlichkeit eine selbstbewusste Komposition.
In Zusammenarbeit mit Carina Krey und Mathias Reuter
Erweiterung Villa im Schwarzwald
Das historische Gebäude wird komplett erhalten, der Anbau aus den 80er Jahren wird zurückgebaut und den heutigen Bedürfnissen angepasst und erweitert. Der neue Baukörper erstreckt sich von der Parkanlage über 2 Geschosse und verbindet sich im Erdgeschoss mit der historischen Villa. Neu und Alt setzen sich in der Formensprache deutlich voneinander ab und bilden durch Ihrer Gegensätzlichkeit eine selbstbewusste Komposition.
In Zusammenarbeit mit Carina Krey und Mathias Reuter
„Studentisches Wohnen im Mannheimer Mühlauhafen“
Standort: Mannheim Hafen
Planung: 2019 / 2020
Bauzeit: 12/2019 - …
Nutzfläche:
NGF 6.500 m² / BGF: 8.000 m²
In Zusammenarbeit mit Carina Krey
Mitten zwischen den Mannheimer Hafenbetrieben befindet sich der denkmalgeschützte frühere Güterbahnhof und das in den 1960ern ergänzte Ledigenwohnheim für die damaligen Bahnmitarbeiter.
In den letzten Jahrzehnten fehlte dem Gebäudekomplex eine stimmige Nutzung und eine gemeinsame gestalterische Linie; das Grundstück daneben war unbebaut. Wir haben ein Projekt entwickelt, das aus den drei sehr unterschiedlichen Teilen ein neues Ganzes macht:
Gemeinschaftliches Wohnen im Hafen. Altbau, Mittelbau und ein Neubau bilden zusammen die neue Einheit, die unterschiedliche Wohnformen birgt.
Vom Einzelapartment mit Schlafempore im Altbau bis hin zu Wohnclustern für sechs Personen über zwei Etagen im Neubau.
Die innere Erschließung durchzieht die drei Gebäudeteile über unterschiedliche Höhenniveaus, was sie zusammenstrickt und funktional verzahnt. Im Erdgeschoß sind Zonen zur gemeinschaftlichen Nutzung verteilt wie Arbeitsräume, Gemeinschaftsküche, Lounge, Café, Sportbereich und Freibereich. Es bildet sich eine neue, bunte Adresse mit zeitgemäßem Image: ANUNDO Hafen.
„Studentisches Wohnen im Mannheimer Mühlauhafen“
Standort: Mannheim Hafen
Planung: 2019 / 2020
Bauzeit: 12/2019 - …
Nutzfläche:
NGF 6.500 m² / BGF: 8.000 m²
In Zusammenarbeit mit Carina Krey
Mitten zwischen den Mannheimer Hafenbetrieben befindet sich der denkmalgeschützte frühere Güterbahnhof und das in den 1960ern ergänzte Ledigenwohnheim für die damaligen Bahnmitarbeiter.
In den letzten Jahrzehnten fehlte dem Gebäudekomplex eine stimmige Nutzung und eine gemeinsame gestalterische Linie; das Grundstück daneben war unbebaut. Wir haben ein Projekt entwickelt, das aus den drei sehr unterschiedlichen Teilen ein neues Ganzes macht:
Gemeinschaftliches Wohnen im Hafen. Altbau, Mittelbau und ein Neubau bilden zusammen die neue Einheit, die unterschiedliche Wohnformen birgt.
Vom Einzelapartment mit Schlafempore im Altbau bis hin zu Wohnclustern für sechs Personen über zwei Etagen im Neubau.
Die innere Erschließung durchzieht die drei Gebäudeteile über unterschiedliche Höhenniveaus, was sie zusammenstrickt und funktional verzahnt. Im Erdgeschoß sind Zonen zur gemeinschaftlichen Nutzung verteilt wie Arbeitsräume, Gemeinschaftsküche, Lounge, Café, Sportbereich und Freibereich. Es bildet sich eine neue, bunte Adresse mit zeitgemäßem Image: ANUNDO Hafen.
„Neubau Gemeindehalle und Vereinsheim Hochdorf“ in Remseck Stadtteil Hochdorf
Gemeindehalle Remseck am Neckar
Standort: Remseck am Neckar - Hochdorf
Planung: 2009
Bauzeit: 02-2010 bis 01-2011
Nutzfläche: 650 m²
Bauvolumen: 3.425 m³
Die neue Gemeindehalle wird an Stelle des bestehenden Gemeindehauses errichtet. Die Gemeindehalle besteht aus einer großen Mehrzweckhalle über 2 Geschosse, einem Vereinsheim mit Gastronomieküche und Nebenräumen. Im Obergeschoss befinden sich die Sanitärräume für die Sportler und die Vereinsräume.
Lage:
Das Gebäude liegt auf der Ebene des Fußballplatzes, durch die erhöhte Lage wird ein direkter Zugang zum Sportplatz und den Freiflächen gewährleistet.
Kubatur:
Die Gebäudehülle ist geradlinig, kompakt, ohne Gebäudeversprünge und hat ein durchgehendes Dach.
Funktionsbereiche:
Erdgeschoss:
Im Erdgeschoss ist das Vereinsheim mit Nebenräumen geplant. Das Vereinsheim ist zum Sportplatz ausgerichtet. Die Freifläche zwischen Vereinsheim und Sportplatz kann als Freisitzbereich genutzt werden.
Die Gemeindehalle, ist ebenfalls im Erdgeschoss und dehnt sich über zwei Geschosse aus. Bei größeren Veranstaltungen kann die Halle auch durch die Vereine genutzt werden, da Halle und Vereinsheim direkt aneinandergrenzen.
Obergeschoss:
Im Obergeschoss sind Vereinsräume Umkleiden und Duschen untergebracht. Umkleideräume und Duschen werden von der Gemeinde und den Vereinen genutzt.
„Neubau Gemeindehalle und Vereinsheim Hochdorf“ in Remseck Stadtteil Hochdorf
Gemeindehalle Remseck am Neckar
Standort: Remseck am Neckar - Hochdorf
Planung: 2009
Bauzeit: 02-2010 bis 01-2011
Nutzfläche: 650 m²
Bauvolumen: 3.425 m³
Die neue Gemeindehalle wird an Stelle des bestehenden Gemeindehauses errichtet. Die Gemeindehalle besteht aus einer großen Mehrzweckhalle über 2 Geschosse, einem Vereinsheim mit Gastronomieküche und Nebenräumen. Im Obergeschoss befinden sich die Sanitärräume für die Sportler und die Vereinsräume.
Lage:
Das Gebäude liegt auf der Ebene des Fußballplatzes, durch die erhöhte Lage wird ein direkter Zugang zum Sportplatz und den Freiflächen gewährleistet.
Kubatur:
Die Gebäudehülle ist geradlinig, kompakt, ohne Gebäudeversprünge und hat ein durchgehendes Dach.
Funktionsbereiche:
Erdgeschoss:
Im Erdgeschoss ist das Vereinsheim mit Nebenräumen geplant. Das Vereinsheim ist zum Sportplatz ausgerichtet. Die Freifläche zwischen Vereinsheim und Sportplatz kann als Freisitzbereich genutzt werden.
Die Gemeindehalle, ist ebenfalls im Erdgeschoss und dehnt sich über zwei Geschosse aus. Bei größeren Veranstaltungen kann die Halle auch durch die Vereine genutzt werden, da Halle und Vereinsheim direkt aneinandergrenzen.
Obergeschoss:
Im Obergeschoss sind Vereinsräume Umkleiden und Duschen untergebracht. Umkleideräume und Duschen werden von der Gemeinde und den Vereinen genutzt.
Villa an der Weinstraße mit Bilck auf die Rheinebene
Standort: Pfalz
Planung: 2013
Bauzeit: 2013 - 2015
Der Bungalow aus den 70 Jahre wird bis auf die Grundmauern rückgebaut und neu konzeptioniert, erweitert und aufgestockt. Die neue Gebäudestruktur bindet das Kellergeschoss als Eingangszone in den Gesamtkomplex ein und führt den Nutzer in die Wohngeschosse. Die Aufstockung / das Panoramazimmer eröffnet den Blick über die Rheinebene.
In Zusammenarbeit mit Carina Krey und Mathias Reuter
Villa an der Weinstraße mit Bilck auf die Rheinebene
Standort: Pfalz
Planung: 2013
Bauzeit: 2013 - 2015
Der Bungalow aus den 70 Jahre wird bis auf die Grundmauern rückgebaut und neu konzeptioniert, erweitert und aufgestockt. Die neue Gebäudestruktur bindet das Kellergeschoss als Eingangszone in den Gesamtkomplex ein und führt den Nutzer in die Wohngeschosse. Die Aufstockung / das Panoramazimmer eröffnet den Blick über die Rheinebene.
In Zusammenarbeit mit Carina Krey und Mathias Reuter
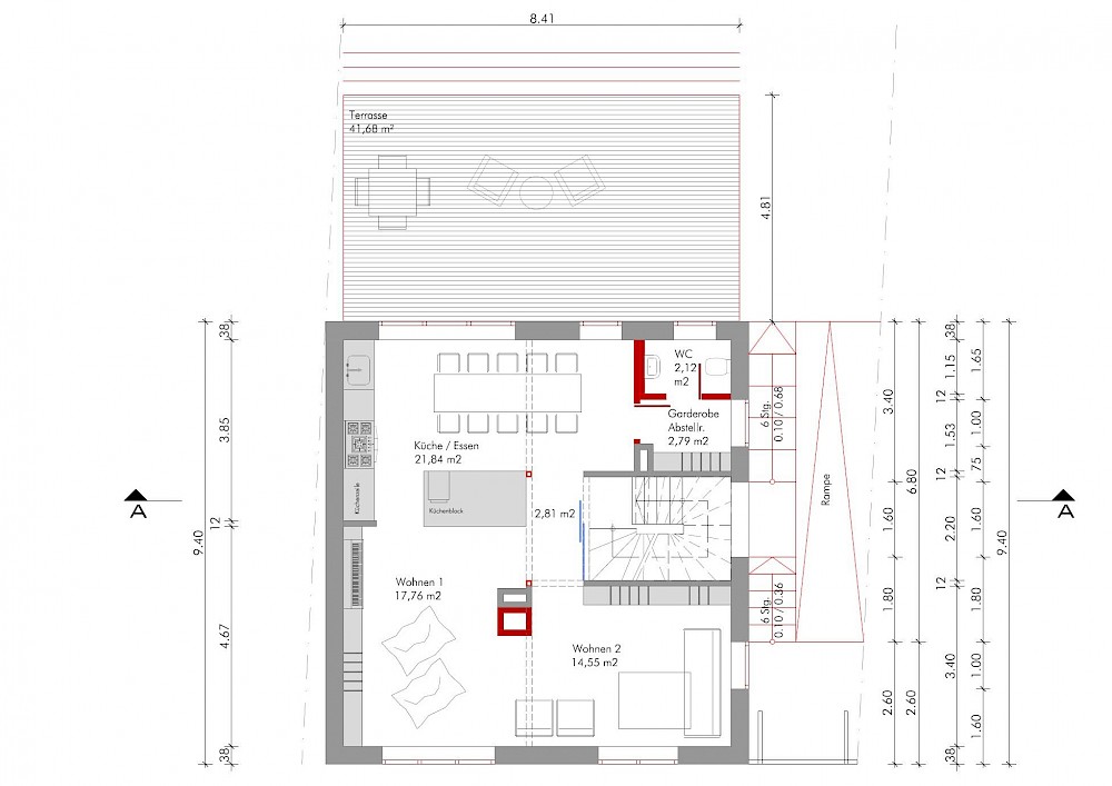
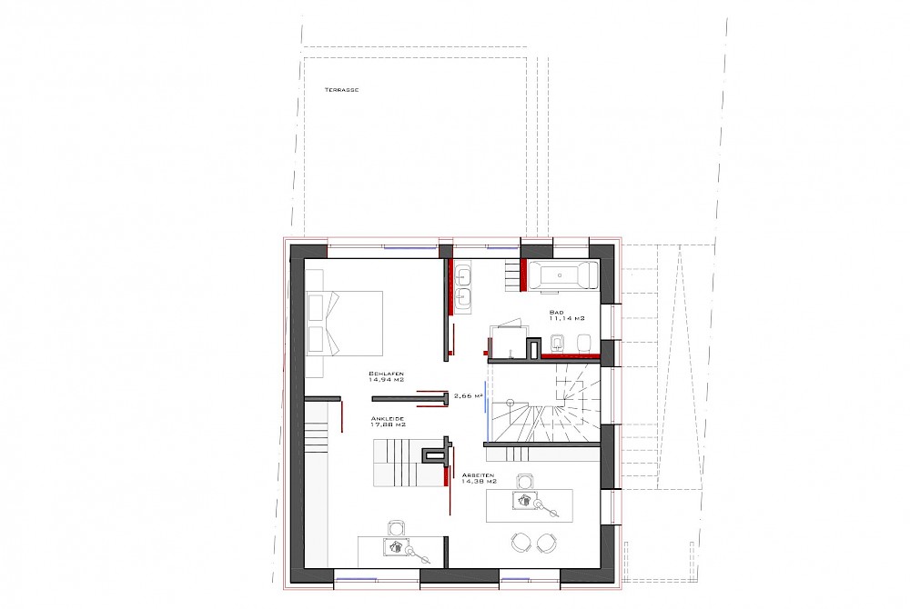
Rückseitige Erweiterung eines Einfamilienhauses in Ludwigshafen.
Das bestehende Gebäude wird auf der Nordseite im Erdgeschoss um einen Wintergarten / Essbereich und im Obergeschoss um 1 Kinderzimmer erweitert.
Rückseitige Erweiterung eines Einfamilienhauses in Ludwigshafen.
Das bestehende Gebäude wird auf der Nordseite im Erdgeschoss um einen Wintergarten / Essbereich und im Obergeschoss um 1 Kinderzimmer erweitert.
Kinderhort Ludwigshafen
Standort: Ludwigshafen Mundenheimerstraße
Planung: 2008
Bauzeit: 2009 - 2010
Nutzfläche: 770 m²
Bauvolumen: 2.970 m³
In Zusammenarbeit mit Stefan Magin
Kinderhort Ludwigshafen
Standort: Ludwigshafen Mundenheimerstraße
Planung: 2008
Bauzeit: 2009 - 2010
Nutzfläche: 770 m²
Bauvolumen: 2.970 m³
In Zusammenarbeit mit Stefan Magin
Auf dem Kirchle
2004
Erweiterung und Kernsanierung eines Fachwerkhauses in Stuttgart Nord
Nutzfläche: 265 m²
Bauvolumen: 973 m³
Auf dem Kirchle
2004
Erweiterung und Kernsanierung eines Fachwerkhauses in Stuttgart Nord
Nutzfläche: 265 m²
Bauvolumen: 973 m³
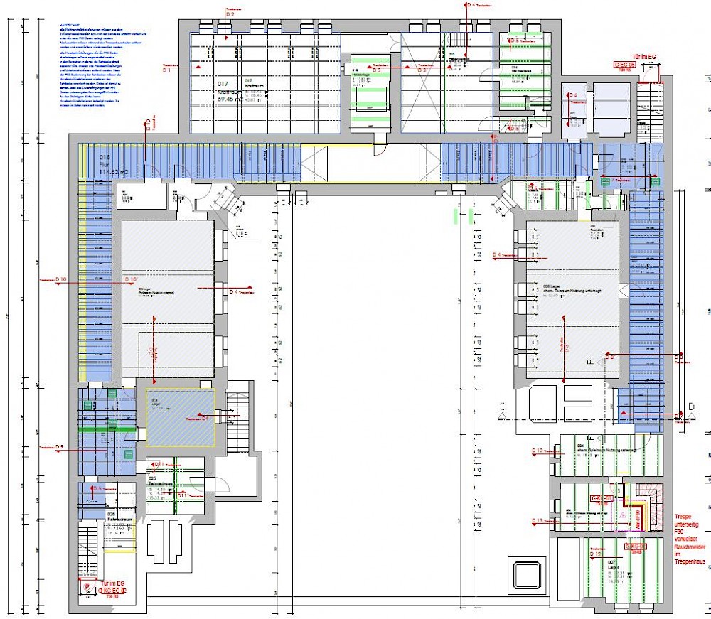
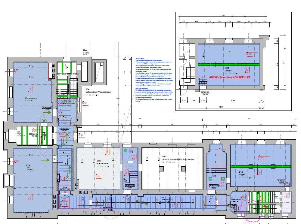
Brandschutzsanierung Wittelsbachschule Ludwigshafen
Bauherr: Stadt Ludwigshafen
Fertigstellung 2018
Brandschutzsanierung Wittelsbachschule Ludwigshafen
Bauherr: Stadt Ludwigshafen
Fertigstellung 2018
Erweiterung der Kindertagesstätte Karl-Dillinger-Straße 7, Ludwigshafen-Oggersheim, durch einen neuen Gebäudeteil.
Der vorhandene Gebäudeteil wurde als Holzkonstruktion errichtet und ist der Hanglage entsprechend in vier halbgeschossige versetzte Geschossebenen gegliedert.
In der ursprünglichen Planung war die Erweiterung durch einen zweiten identischen Gebäudeteil vorgesehen.
Der Neubau nimmt als Erweiterungsbau einerseits Elemente des vorhandenen Gebäudeteils auf (Fassadenfluchten, Höhenstaffelung, Dachform, Dachneigung, Traufhöhen),
stellt sich andererseits durch Differenzierungen der Gebäudehülle (Wandoberflächen, Fassadengliederung, Dachflächen) bewusst als eigenständiger Gebäudeteil dar.
In Zusammenarbeit mit Jörg Loch
Erweiterung der Kindertagesstätte Karl-Dillinger-Straße 7, Ludwigshafen-Oggersheim, durch einen neuen Gebäudeteil.
Der vorhandene Gebäudeteil wurde als Holzkonstruktion errichtet und ist der Hanglage entsprechend in vier halbgeschossige versetzte Geschossebenen gegliedert.
In der ursprünglichen Planung war die Erweiterung durch einen zweiten identischen Gebäudeteil vorgesehen.
Der Neubau nimmt als Erweiterungsbau einerseits Elemente des vorhandenen Gebäudeteils auf (Fassadenfluchten, Höhenstaffelung, Dachform, Dachneigung, Traufhöhen),
stellt sich andererseits durch Differenzierungen der Gebäudehülle (Wandoberflächen, Fassadengliederung, Dachflächen) bewusst als eigenständiger Gebäudeteil dar.
In Zusammenarbeit mit Jörg Loch
Wilhelm-Leuschner-Schule
Ludwigshafen
Brandschutzsanierung
Bauherr: Stadt Ludwigshafen
Fertigstellung 2019
Wilhelm-Leuschner-Schule
Ludwigshafen
Brandschutzsanierung
Bauherr: Stadt Ludwigshafen
Fertigstellung 2019
Kernsanierung der Schulsporthalle Grundschule Pfingstweide in Ludwigshafen
Fertigstellung 2010
BGF ca. 1.300 m2
Kernsanierung der Schulsporthalle Grundschule Pfingstweide in Ludwigshafen
Fertigstellung 2010
BGF ca. 1.300 m2
Wettbewerb Christuskirche Speyer
In Zusammenarbeit mit Carina Krey
Die prägnante Christuskirche in Speyer wird vorsichtig verkleinert, die Funktionen des Gemeindezentrums werden ergänzt
An der Schnittstelle, die durch den Abriss des Gemeindezentrums entsteht, wird ein weißer ruhiger Kubus eingeschoben. Die Architekturqualität des Kirchenraums wird in Szene gesetzt und gleichzeitig ein großer Mehrwert erzeugt. Die Gemeindemitte verändert sich zeitgemäß, wobei der Kirchenraum selbst vertraut bleibt
Neu ist ein zweiseitiger, gemeinsamer Zugang in der Fuge zwischen der Kirche und der Nachbarbebauung, sodass Kirche und Umfeld voneinander profitieren und das "neue Gemeindeleben" gestärkt wird. Der neue Eingang der Kirche liegt auf ihrer Mittelachse.
Der Turm steht frei wie eine Skulptur im neu gestalteten Außenraum und wird als offener Infopunkt genutzt. Ein lebendiger Außenraum umgibt das neue Gemeindezentrum.
Wettbewerb Christuskirche Speyer
In Zusammenarbeit mit Carina Krey
Die prägnante Christuskirche in Speyer wird vorsichtig verkleinert, die Funktionen des Gemeindezentrums werden ergänzt
An der Schnittstelle, die durch den Abriss des Gemeindezentrums entsteht, wird ein weißer ruhiger Kubus eingeschoben. Die Architekturqualität des Kirchenraums wird in Szene gesetzt und gleichzeitig ein großer Mehrwert erzeugt. Die Gemeindemitte verändert sich zeitgemäß, wobei der Kirchenraum selbst vertraut bleibt
Neu ist ein zweiseitiger, gemeinsamer Zugang in der Fuge zwischen der Kirche und der Nachbarbebauung, sodass Kirche und Umfeld voneinander profitieren und das "neue Gemeindeleben" gestärkt wird. Der neue Eingang der Kirche liegt auf ihrer Mittelachse.
Der Turm steht frei wie eine Skulptur im neu gestalteten Außenraum und wird als offener Infopunkt genutzt. Ein lebendiger Außenraum umgibt das neue Gemeindezentrum.
Astrid-Lindgren-Schule
Ludwigshafen Ruchheim
Brandschutzsanierung
Bauherr: Stadt Ludwigshafen
Fertigstellung 2019
Astrid-Lindgren-Schule
Ludwigshafen Ruchheim
Brandschutzsanierung
Bauherr: Stadt Ludwigshafen
Fertigstellung 2019
2020
Berufsbildende Schule Wirtschaft II, Ludwigshafen
Erneuerung Dachstuhl mit Schieferdeckung
1.500 m2 Schieferdeckung
Bauherr: Stadt Ludwigshafen
2020
Berufsbildende Schule Wirtschaft II, Ludwigshafen
Erneuerung Dachstuhl mit Schieferdeckung
1.500 m2 Schieferdeckung
Bauherr: Stadt Ludwigshafen
Theodor-Heuss-Gymnasium
Ludwigshafen
Bibliothek
Bauherr: Stadt Ludwigshafen
Fertigstellung 2011
Theodor-Heuss-Gymnasium
Ludwigshafen
Bibliothek
Bauherr: Stadt Ludwigshafen
Fertigstellung 2011
Sanierung Haus K in Stuttgart
Standort: Stuttgart Zazenhausen
2010
Sanierung Haus K in Stuttgart
Standort: Stuttgart Zazenhausen
2010
Standort: Ludwigshafen Maudach
Planung: 2021
Bauzeit: 10/2021 – 12/2022
Nutzfläche: BGF: 1.015 m², BRI 3.500 m³
Bestand:
Der bestehende Gebäudekomplex beinhaltet verschiedene Nutzungen wie Gewerbe, Einzelhandel, Gastronomie bis hin zur Wohnnutzung.
Der Kopfbau des Gebäudes wurde früher als Supermarkt betrieben.
Konzept:
Der ehemalige Verkaufsraum des Supermarktes wird im Erdgeschoss zur Tierklinik umgebaut. Es entstehen große separate Wartebereiche für Hunde und Katzen.
Am zentral angeordneten Eingangsbereich befindet sich die Rezeption mit angegliederter Apotheke und Laborbereich.
Die Tierklinik umfasst acht Behandlungsräume, drei OP Räume plus die OP Vorbereitung.
Der neue CT / Röntgenraum erweitert das Behandlungsspektrum.
Drei separate Räume bieten Platz für die stationäre Behandlung von Tieren.
Im Obergeschoss wird der ehemalige Lagerraum und die Verwaltungsräume des Supermarktes zur modernen Tierklinikverwaltung mit Notdienstzimmern und Besprechungsraum umgebaut.
Gebäudehülle:
Die Gebäudehülle wurde nur unwesentlich verändert. Im Erdgeschoss wurden zusätzliche Fenster eingebaut, die sich an den bestehenden Fenstern der darüber liegenden Wohnungen orientieren.
Durch die Ausbildung von farblich abgestuften Fensterumrandungen wird Leben in die bestehende Fassade gebracht.
Lage:
Die Tierklinik befindet sich in Ludwigshafen Maudach und somit im Einzugsgebiet des tierärztlich unterversorgten Stadtzentrums von Ludwigshafen.
Standort: Ludwigshafen Maudach
Planung: 2021
Bauzeit: 10/2021 – 12/2022
Nutzfläche: BGF: 1.015 m², BRI 3.500 m³
Bestand:
Der bestehende Gebäudekomplex beinhaltet verschiedene Nutzungen wie Gewerbe, Einzelhandel, Gastronomie bis hin zur Wohnnutzung.
Der Kopfbau des Gebäudes wurde früher als Supermarkt betrieben.
Konzept:
Der ehemalige Verkaufsraum des Supermarktes wird im Erdgeschoss zur Tierklinik umgebaut. Es entstehen große separate Wartebereiche für Hunde und Katzen.
Am zentral angeordneten Eingangsbereich befindet sich die Rezeption mit angegliederter Apotheke und Laborbereich.
Die Tierklinik umfasst acht Behandlungsräume, drei OP Räume plus die OP Vorbereitung.
Der neue CT / Röntgenraum erweitert das Behandlungsspektrum.
Drei separate Räume bieten Platz für die stationäre Behandlung von Tieren.
Im Obergeschoss wird der ehemalige Lagerraum und die Verwaltungsräume des Supermarktes zur modernen Tierklinikverwaltung mit Notdienstzimmern und Besprechungsraum umgebaut.
Gebäudehülle:
Die Gebäudehülle wurde nur unwesentlich verändert. Im Erdgeschoss wurden zusätzliche Fenster eingebaut, die sich an den bestehenden Fenstern der darüber liegenden Wohnungen orientieren.
Durch die Ausbildung von farblich abgestuften Fensterumrandungen wird Leben in die bestehende Fassade gebracht.
Lage:
Die Tierklinik befindet sich in Ludwigshafen Maudach und somit im Einzugsgebiet des tierärztlich unterversorgten Stadtzentrums von Ludwigshafen.
„Errichtung eines Pavilloncontainer als Schulerweiterung“
Standort: Ludwigshafen Rheingönheim
Planung: 2022
Bauzeit: 01/2023 - 04/2023
Bauherr: Stadt Ludwigshafen
Die Notwendigkeit
akuter Platzmangel, schnellstmögliche Bauzeiten, einfache Genehmigungsverfahren, temporäre Nutzung. Das sind Gründe für den Einsatz und Bau von Containermodulen im Schulbau. In der Mozartschule musste Platz auf dem Schulhof für die zusätzlichen Klassenräume zur Verfügung gestellt werden. Mit der freundlichen Farbwahl und der kompakten Bauweise wurde der Pavillonbau in das Schulensemble integriert und findet positiven Zuspruch durch Nutzer und Anwohner.
„Errichtung eines Pavilloncontainer als Schulerweiterung“
Standort: Ludwigshafen Rheingönheim
Planung: 2022
Bauzeit: 01/2023 - 04/2023
Bauherr: Stadt Ludwigshafen
Die Notwendigkeit
akuter Platzmangel, schnellstmögliche Bauzeiten, einfache Genehmigungsverfahren, temporäre Nutzung. Das sind Gründe für den Einsatz und Bau von Containermodulen im Schulbau. In der Mozartschule musste Platz auf dem Schulhof für die zusätzlichen Klassenräume zur Verfügung gestellt werden. Mit der freundlichen Farbwahl und der kompakten Bauweise wurde der Pavillonbau in das Schulensemble integriert und findet positiven Zuspruch durch Nutzer und Anwohner.
Wittelsbachschule Ludwigshafen
Sanierung Sporthalle mit historischer Fassade
Bauherr: Stadt Ludwigshafen
Fertigstellung 2014
Wittelsbachschule Ludwigshafen
Sanierung Sporthalle mit historischer Fassade
Bauherr: Stadt Ludwigshafen
Fertigstellung 2014
2023 - 2021 Tierklinik AniCura LU Maudach
Leistungsphasen 1-8 gem. HOAI
Bauherr: AniCura GmbH
2023 - 2022 Neubau Pavillon
Leistungsphasen 1-4 gem. HOAI – Überwachung GU
Bauherr: Stadtverwaltung Ludwigshafen
2023 - 2022 Erweiterungsbau - Fassadensanierung
Leistungsphasen 1-8 gem. HOAI
Bauherr: Stadtverwaltung Ludwigshafen
2023 - 2018 Brandschutzsanierung
Leistungsphasen 1-8 gem. HOAI
Bauherr: Stadtverwaltung Ludwigshafen
2022 Entwurfsplanung Haus am Hang Erfweiler
Leistungsphasen 1-3 gem. HOAI
Bauherr: privat
2021 Entwurfsplanung / Machbarkeitsstudie Mutterstadt
Bauherr: privat
2021 Leistungsphasen 1-4 gem. HOAI
Bauherr: boats and more
2020 Bestandsaufnahme / Erstellung Sanierungskonzept
Bauherr: Gemeinde Hassloch
2020 Bestandsaufnahme / Erstellung Sanierungskonzept
Bauherr: Gemeinde Hassloch
2020 Bestandsaufnahme / Erstellung Sanierungskonzept
Bauherr: Gemeinde Hassloch
2020 Leistungsphasen 1-8 gem. HOAI
Bauherr: privat
2020 Beraterleistungen
Bauherr: privat / ANUNDO
2020 Leistungsphasen 1-8 gem. HOAI
Bauherr: privat
2020 Leistungsphasen 1-8 gem. HOAI
Bauherr: Kyocera
2020 Schieferdachsanierung
Leistungsphasen 1-8 gem. HOAI
Bauherr: Stadtverwaltung Ludwigshafen
2020 Leistungsphasen 1-8 gem. HOAI
Bauherr: Stadtverwaltung Ludwigshafen
2019 Sanierung Deckensysteme Fluchtwege
Leistungsphasen 1-8 gem. HOAI
Bauherr: Stadtverwaltung Ludwigshafen
2019 Leistungsphasen 1-7 gem. HOAI
Bestandsaufnahme / Brandschutzsanieurng
Bauherr: Gemeinde Hassloch
2018 Wettbewerb Speyer Christuskirche
2018 Leistungsphasen 1-3 gem. HOAI
Bauherr: DHV Ingenieur Consulting
2018 Leistungsphasen 1-9 gem. HOAI
Bauherr: Stadtverwaltung Ludwigshafen
2017 Leistungsphasen 1-9 gem. HOAI
Bauherr: privat
2017 Leistungsphasen 1-3 gem. HOAI
Bauherr: Stadtverwaltung Ludwigshafen
2017 Leistungsphasen 1-9 gem. HOAI
Bauherr: Stadtverwaltung Ludwigshafen
2017 Leistungsphasen 1-9 gem. HOAI
Bauherr: Stadtverwaltung Ludwigshafen
2016 Leistungsphasen 5-8 gem. HOAI
Bauherr: Stadtverwaltung Ludwigshafen
2015 Leistungsphasen 1-9 gem. HOAI
Bauherr: privat
2015 Entwurfsplanung / Standortuntersuchung
Bauherr: Stadtverwaltung Remseck am Neckar
2015 Leistungsphasen 1-8 gem. HOAI
Bauherr: Stadtverwaltung Ludwigshafen
2015 Leistungsphasen 1-7 gem. HOAI
Bauherr: LBB Landau (Landesbetrieb Landau)
2014 Leistungsphasen 1-8 gem. HOAI
Bauherr: Stadtverwaltung Ludwigshafen
2014 Leistungsphasen 1-9 gem. HOAI
Bauherr: Stadtverwaltung Ludwigshafen
2012 Leistungsphasen 1-8 gem. HOAI
Bauherr: Stadtverwaltung Ludwigshafen
2012 Leistungsphasen 1-4 gem. HOAI
Bauherr: Turnverein Zazenhausen
2012 Leistungsphasen 1-8 gem. HOAI
Bauherr: Stadtverwaltung Ludwigshafen
2012 Leistungsphasen 1-3 gem. HOAI
Bauherr: Friatec AG, Mannheim
2011 Projektstudien zur Errichtung von Büroneubauten
Bauherr: Friadent GmbH, Mannheim
2011 Leistungsphase 1-9 gem. HOAI
Bauherr: Stadtverwaltung Ludwigshafen
2011 Leistungsphase 1-9 gem. HOAI
Bauherr: Stadtverwaltung Ludwigshafen
2010 Leistungsphase 1-9 gem. HOAI
Bauherr: Stadtverwaltung Remseck am Neckar
2010 Bauabschnitt 1-2 / Leistungsphase 1-9 gem. HOAI
Bauherr: Stadtverwaltung Ludwigshafen
2010 Bauabschnitt 1-2 / Abwicklung aller Leistungsphasen gem. HOAI
Bauherr: Stadtverwaltung Ludwigshafen
2010 Leistungsphasen 1-9 gem. HOAI / Bauherr: privat
2009 Abwicklung aller Leistungsphasen gem. HOAI
Bauherr: Stadtverwaltung Ludwigshafen
2009 Leistungsphasen 1-4 gem. HOAI
Bauherr: FRIADENT GmbH AG, Mannheim
2009 Abwicklung aller Leistungsphasen gem. HOAI
Bauherr: Stadtverwaltung Ludwigshafen
2009 Abwicklung aller Leistungsphasen gem. HOAI
Bauherr: Stadtverwaltung Ludwigshafen
2009 Leistungsphasen 1-4 gem. HOAI
Bauherr: privat
2008 Leistungsphase 4 gem. HOAI
Bauherr: FRIADENT GmbH AG, Mannheim
2008 Leistungsphase 4 gem. HOAI
Bauherr: Friatec AG, Mannheim
2008 Leistungsphase 1-4 gem. HOAI
Bauherr: Friatec AG, Mannheim
2008 Abwicklung aller Leistungsphasen gem. HOAI
Bauherr: Stadtverwaltung Ludwigshafen
2008 Abwicklung aller Leistungsphasen gem. HOAI
Bauherr: Stadtverwaltung Ludwigshafen
2008 Abwicklung aller Leistungsphasen gem. HOAI
Bauherr: privat
2007 Leistungsphasen 1-4 (teilweise 5) gem. HOAI
Bauherr: privat
2007 Leistungsphasen 1-4 gem. HOAI
Bauherr: FRIADENT GmbH
2007 Dachsanierung / Fassadensanierung Abwicklung aller Leistungsphasen gem. HOAI
Bauherr: Stadtverwaltung Ludwigshafen
2007 Brandschutzmaßnahmen / Fluchtwegesicherung / Flächenoptimierung
Abwicklung aller Leistungsphasen gem. HOAI
Bauherr: Stadtverwaltung Ludwigshafen
2007 Leistungsphasen 1-4 (teilweise 5) gem. HOAI
Bauherr: privat
2006 Abwicklung aller Leistungsphasen gem. HOAI
Bauherr: privat
2005 Leistungsphase 4 gem. HOAI
Bauherr: Friatec AG, Mannheim
2005 Umbau / Zusammenlegung / Sanierung von drei Wohnungen in einem Gründerzeithaus in Mannheim
Bauherr: privat
2005 Mitarbeit bei Pfalzbau Ludwigshafen, Neugestaltung des Foyerbereichs im EG
2. Preis Gerling + Arendt Planungsgesellschaft
2005 Abwicklung aller Leistungsphasen gem. HOAI
Bauherr: Stadtverwaltung Ludwigshafen
2005 Leistungsphasen 1-6 HOAI / Bauherr: Stadtwerke Neckargemünd GmbH
2005 Abwicklung aller Leistungsphasen gem. HOAI
Bauherr: privat
2004 Teilleistungen Leistungsphasen 5-6 gem. HOAI
Auftraggeber: Gerling+Arendt Planungsgesellschaft mbH
2004 Wettbewerb "Wohnen am Wasser" Parkinsel Ludwigshafen
2004 Projektentwicklung / Sanierungskonzept für Wohnbebauung mit 70 Wohneinheiten der 50er Jahre
Abwicklung aller Leistungsphasen gem. HOAI
Bauherr: Baugenossenschaft Neues Heim EV Stuttgart
2004 Abwicklung aller Leistungsphasen gem. HOAI
Bauherr: privat
2004 Abwicklung aller Leistungsphasen gem. HOAI
Bauherr: privat
2003 Abwicklung aller Leistungsphasen gem. HOAI
Bauherr: Turnverein Zazenhausen
2003 Leistungsphasen 1-4 gem. HOAI
Bauherr: privat
2003 Abwicklung aller Leistungsphasen gem. HOAI
Bauherr: privat
2002 Leistungsphasen 1-4 gem. HOAI
Bauherr: Unicat GmbH, Fahrzeugbau
2001 Abwicklung aller Leistungsphasen gem. HOAI
Bauherr: Privat
2001 Abwicklung aller Leistungsphasen gem. HOAI
Bauherr: privat
2000 Entwurfsplanung; CAD-Visualisierung
Leistungsphasen 1-4 gem. HOAI
Bauherr: Friatec AG
2000 Abwicklung aller Leistungsphasen gem. HOAI
Bauherr: privat
2000 Leistungsphasen 1-4 gem. HOAI
Bauherr: Heidelberger Druckmaschinen AG
2000 Abwicklung aller Leistungsphasen gem. HOAI
Bauherr: Heidelberger Druckmaschinen AG
2000 Entwurfsplanung
Bauherr: Heidelberger Druckmaschinen AG
1999 Neubau Pfalzmuseum Bad Dürkheim
1999 Lübeck, Realisierungswettbewerb Umbau- und Erweiterung des St. Annen-Museums
1999 Leistungsphasen 1-4 gem. HOAI
Bauherr: Heidelberger Druckmaschinen AG
1999 Leistungsphasen 1-4 gem. HOAI
Bauherr: Arcor AG
1999 Leistungsphasen 1-4 gem. HOAI
Bauherr: Arcor AG
1999 Abwicklung aller Leistungsphasen gem. HOAI
Bauherr: Arcor AG
1999 Stadt Heidelberg; Weiter- und Umnutzung des alten Hallenbades in Heidelberg - Entwurfsplanung
1999 Abwicklung aller Leistungsphasen gem. HOAI
Bauherr: Heidelberger Druckmaschinen AG
1998 Abwicklung aller Leistungsphasen gem. HOAI
Bauherr: Heidelberger Druckmaschinen AG
1998 Alzenau; Realisierungswettbewerb Schule für individuelle Lernförderung
1998 DB AG Weiden; städtebauliche Studie ehemaliges Bahnbetriebsgelände
|
1998 Gemeinde Schwarzach; städtebauliche Studie Neugestaltung Ortszentrum |
Praktikant/in
Aufgabenbereich:
Anforderungen:
Wenn Sie sich im Hauptstudium befinden und in unserem Team mitarbeiten wollen, freuen wir uns auf Ihre Bewerbung!
Kurzbewerbungen mit Arbeitsproben bitte per e-Mail an: info@k-l-a-r.de
Dipl. Ing. TU, Architektin
Büroinhaberin
1989-1996 - Architekturstudium Universität Kaiserslautern
1997-1998 - Stadtverwaltung Ludwigshafen Hochbau
1998-1999 - DHV Ingenieur-Consulting GmbH in Heidelberg
1999 - Büro in Mannheim
seit 2001 - Büro in Ludwigshafen und Stuttgart
jung und frech - in der Ausbildung
IMMER IN UNSEREN HERZEN
K L A R
Der Ursprung unseres Namens ist vielfältig, der Inhalt eindeutig.
Was das Wort ausdrückt ist unser Leitbild.
Unser Spektrum umfasst die Objektplanung für Gebäude und Innenarchitektur im Dialog mit dem Außenraum.
Wir bearbeiten alle klassischen Architektenleistungen, von der Grundlagenermittlung bis zur Objektfertigstellung.
Darüber hinaus entwickeln wir in enger Zusammenarbeit mit unseren Auftraggebern neue Projekte.
1. Name und Kontaktdaten des für die Verarbeitung Verantwortlichen
Diese Datenschutz-Information gilt für die Datenverarbeitung durch:
Verantwortlicher: Dipl.-Ing. Katja Lederer / Bayernstraße 60 | 67061 Ludwigshafen |
T 0049 621 5610484 | info@k-l-a-r.de.de
2. Erhebung und Speicherung personenbezogener Daten sowie Art und Zweck von deren Verwendung
a) Beim Besuch der Website
Beim Aufrufen unserer Website radiusplus.de werden durch den auf Ihrem Endgerät zum Einsatz kommenden Browser automatisch Informationen an den Server unserer Website gesendet. Diese Informationen werden temporär in einem sog. Logfile gespeichert. Folgende Informationen werden dabei ohne Ihr Zutun erfasst und bis zur automatisierten Löschung gespeichert:
• IP-Adresse des anfragenden Rechners,
• Datum und Uhrzeit des Zugriffs,
• Name und URL der abgerufenen Datei,
• Website, von der aus der Zugriff erfolgt (Referrer-URL),
• verwendeter Browser und ggf. das Betriebssystem Ihres Rechners sowie der Name Ihres Access-Providers.
Die genannten Daten werden durch uns zu folgenden Zwecken verarbeitet:
• Gewährleistung eines reibungslosen Verbindungsaufbaus der Website,
• Gewährleistung einer komfortablen Nutzung unserer Website,
• Auswertung der Systemsicherheit und -stabilität sowie
• zu weiteren administrativen Zwecken.
Die Rechtsgrundlage für die Datenverarbeitung ist Art. 6 Abs. 1 S. 1 lit. f DSGVO. Unser berechtigtes Interesse folgt aus oben aufgelisteten Zwecken zur Datenerhebung. In keinem Fall verwenden wir die erhobenen Daten zu dem Zweck, Rückschlüsse auf Ihre Person zu ziehen.
Darüber hinaus setzen wir beim Besuch unserer Website Cookies ein. Nähere Erläuterungen dazu erhalten Sie unter den Ziff. 4 dieser Datenschutzerklärung.
3. Weitergabe von Daten
Eine Übermittlung Ihrer persönlichen Daten an Dritte zu anderen als den im Folgenden aufgeführten Zwecken findet nicht statt.
Wir geben Ihre persönlichen Daten nur an Dritte weiter, wenn:
• Sie Ihre nach Art. 6 Abs. 1 S. 1 lit. a DSGVO ausdrückliche Einwilligung dazu erteilt haben,
• die Weitergabe nach Art. 6 Abs. 1 S. 1 lit. f DSGVO zur Geltendmachung, Ausübung oder Verteidigung von Rechtsansprüchen erforderlich ist und kein Grund zur Annahme besteht, dass Sie ein überwiegendes schutzwürdiges Interesse an der Nichtweitergabe Ihrer Daten haben,
• für den Fall, dass für die Weitergabe nach Art. 6 Abs. 1 S. 1 lit. c DSGVO eine gesetzliche Verpflichtung besteht, sowie
• dies gesetzlich zulässig und nach Art. 6 Abs. 1 S. 1 lit. b DSGVO für die Abwicklung von Vertragsverhältnissen mit Ihnen erforderlich ist.
4. Cookies
Wir setzen auf unserer Seite Cookies ein. Hierbei handelt es sich um kleine Dateien, die Ihr Browser automatisch erstellt und die auf Ihrem Endgerät (Laptop, Tablet, Smartphone o.ä.) gespeichert werden, wenn Sie unsere Seite besuchen. Cookies richten auf Ihrem Endgerät keinen Schaden an, enthalten keine Viren, Trojaner oder sonstige Schadsoftware.
In dem Cookie werden Informationen abgelegt, die sich jeweils im Zusammenhang mit dem spezifisch eingesetzten Endgerät ergeben. Dies bedeutet jedoch nicht, dass wir dadurch unmittelbar Kenntnis von Ihrer Identität erhalten.
Der Einsatz von Cookies dient einerseits dazu, die Nutzung unseres Angebots für Sie angenehmer zu gestalten. So setzen wir sogenannte Session-Cookies ein, um zu erkennen, dass Sie einzelne Seiten unserer Website bereits besucht haben. Diese werden nach Verlassen unserer Seite automatisch gelöscht.
Darüber hinaus setzen wir ebenfalls zur Optimierung der Benutzerfreundlichkeit temporäre Cookies ein, die für einen bestimmten festgelegten Zeitraum auf Ihrem Endgerät gespeichert werden. Besuchen Sie unsere Seite erneut, um unsere Dienste in Anspruch zu nehmen, wird automatisch erkannt, dass Sie bereits bei uns waren und welche Eingaben und Einstellungen sie getätigt haben, um diese nicht noch einmal eingeben zu müssen.
Zum anderen setzten wir Cookies ein, um die Nutzung unserer Website statistisch zu erfassen und zum Zwecke der Optimierung unseres Angebotes für Sie auszuwerten (siehe Ziff. 5). Diese Cookies ermöglichen es uns, bei einem erneuten Besuch unserer Seite automatisch zu erkennen, dass Sie bereits bei uns waren. Diese Cookies werden nach einer jeweils definierten Zeit automatisch gelöscht.
Die durch Cookies verarbeiteten Daten sind für die genannten Zwecke zur Wahrung unserer berechtigten Interessen sowie der Dritter nach Art. 6 Abs. 1 S. 1 lit. f DSGVO erforderlich.
Die meisten Browser akzeptieren Cookies automatisch. Sie können Ihren Browser jedoch so konfigurieren, dass keine Cookies auf Ihrem Computer gespeichert werden oder stets ein Hinweis erscheint, bevor ein neuer Cookie angelegt wird. Die vollständige Deaktivierung von Cookies kann jedoch dazu führen, dass Sie nicht alle Funktionen unserer Website nutzen können.
5. Plugins und Tools
Google Web Fonts
Diese Seite nutzt zur einheitlichen Darstellung von Schriftarten so genannte Web Fonts, die von Google bereitgestellt werden. Beim Aufruf einer Seite lädt Ihr Browser die benötigten Web Fonts in ihren Browsercache, um Texte und Schriftarten korrekt anzuzeigen.
Zu diesem Zweck muss der von Ihnen verwendete Browser Verbindung zu den Servern von Google aufnehmen. Hierdurch erlangt Google Kenntnis darüber, dass über Ihre IP-Adresse unsere Website aufgerufen wurde. Die Nutzung von Google Web Fonts erfolgt im Interesse einer einheitlichen und ansprechenden Darstellung unserer Online-Angebote. Dies stellt ein berechtigtes Interesse im Sinne von Art. 6 Abs. 1 lit. f DSGVO dar.
Wenn Ihr Browser Web Fonts nicht unterstützt, wird eine Standardschrift von Ihrem Computer genutzt.
Weitere Informationen zu Google Web Fonts finden Sie unter https://developers.google.com/fonts/faq und in der Datenschutzerklärung von Google: https://www.google.com/policies/privacy/.
6. Betroffenenrechte
Sie haben das Recht:
gemäß Art. 15 DSGVO Auskunft über Ihre von uns verarbeiteten personenbezogenen Daten zu verlangen. Insbesondere können Sie Auskunft über die Verarbeitungszwecke, die Kategorie der personenbezogenen Daten, die Kategorien von Empfängern, gegenüber denen Ihre Daten offengelegt wurden oder werden, die geplante Speicherdauer, das Bestehen eines Rechts auf Berichtigung, Löschung, Einschränkung der Verarbeitung oder Widerspruch, das Bestehen eines Beschwerderechts, die Herkunft ihrer Daten, sofern diese nicht bei uns erhoben wurden, sowie über das Bestehen einer automatisierten Entscheidungsfindung einschließlich Profiling und ggf. aussagekräftigen Informationen zu deren Einzelheiten verlangen;
gemäß Art. 16 DSGVO unverzüglich die Berichtigung unrichtiger oder Vervollständigung Ihrer bei uns gespeicherten personenbezogenen Daten zu verlangen;
gemäß Art. 17 DSGVO die Löschung Ihrer bei uns gespeicherten personenbezogenen Daten zu verlangen, soweit nicht die Verarbeitung zur Ausübung des Rechts auf freie Meinungsäußerung und Information, zur Erfüllung einer rechtlichen Verpflichtung, aus Gründen des öffentlichen Interesses oder zur Geltendmachung, Ausübung oder Verteidigung von Rechtsansprüchen erforderlich ist;
gemäß Art. 18 DSGVO die Einschränkung der Verarbeitung Ihrer personenbezogenen Daten zu verlangen, soweit die Richtigkeit der Daten von Ihnen bestritten wird, die Verarbeitung unrechtmäßig ist, Sie aber deren Löschung ablehnen und wir die Daten nicht mehr benötigen, Sie jedoch diese zur Geltendmachung, Ausübung oder Verteidigung von Rechtsansprüchen benötigen oder Sie gemäß Art. 21 DSGVO Widerspruch gegen die Verarbeitung eingelegt haben;
gemäß Art. 20 DSGVO Ihre personenbezogenen Daten, die Sie uns bereitgestellt haben, in einem strukturierten, gängigen und maschinenlesebaren Format zu erhalten oder die Übermittlung an einen anderen Verantwortlichen zu verlangen;
gemäß Art. 7 Abs. 3 DSGVO Ihre einmal erteilte Einwilligung jederzeit gegenüber uns zu widerrufen. Dies hat zur Folge, dass wir die Datenverarbeitung, die auf dieser Einwilligung beruhte, für die Zukunft nicht mehr fortführen dürfen und
gemäß Art. 77 DSGVO sich bei einer Aufsichtsbehörde zu beschweren. In der Regel können Sie sich hierfür an die Aufsichtsbehörde Ihres üblichen Aufenthaltsortes oder Arbeitsplatzes oder unseres Firmensitzes wenden.
7. Widerspruchsrecht
Sofern Ihre personenbezogenen Daten auf Grundlage von berechtigten Interessen gemäß Art. 6 Abs. 1 S. 1 lit. f DSGVO verarbeitet werden, haben Sie das Recht, gemäß Art. 21 DSGVO Widerspruch gegen die Verarbeitung Ihrer personenbezogenen Daten einzulegen, soweit dafür Gründe vorliegen, die sich aus Ihrer besonderen Situation ergeben oder sich der Widerspruch gegen Direktwerbung richtet. Im letzteren Fall haben Sie ein generelles Widerspruchsrecht, das ohne Angabe einer besonderen Situation von uns umgesetzt wird.
Möchten Sie von Ihrem Widerrufs- oder Widerspruchsrecht Gebrauch machen, genügt eine E-Mail an info@k-l-a-r.de.de
8. Datensicherheit
Wir bedienen uns geeigneter technischer und organisatorischer Sicherheitsmaßnahmen, um Ihre Daten gegen zufällige oder vorsätzliche Manipulationen, teilweisen oder vollständigen Verlust, Zerstörung oder gegen den unbefugten Zugriff Dritter zu schützen. Unsere Sicherheitsmaßnahmen werden entsprechend der technologischen Entwicklung fortlaufend verbessert.
9. Aktualität und Änderung dieser Datenschutzerklärung
Diese Datenschutzerklärung ist aktuell gültig und hat den Stand Mai 2018.
Durch die Weiterentwicklung unserer Website und Angebote darüber oder aufgrund geänderter gesetzlicher beziehungsweise behördlicher Vorgaben kann es notwendig werden, diese Datenschutzerklärung zu ändern. Die jeweils aktuelle Datenschutzerklärung kann jederzeit auf der Website unter k-l-a-r.de/datenschutz/ von Ihnen abgerufen und ausgedruckt werden.
Inhaltlich verantwortlich:
Dipl.-Ing. Katja Lederer, Bayernstraße 60 | 67061 Ludwigsafen | T 0049 621 5610484 | info@k-l-a-r.de
Design & Programmierung:
leisundkuckert.de
Haftungsausschluss:
Die Webseite enthält sog. „externe Links“ (Verlinkungen) zu anderen Webseiten, auf deren Inhalt der Anbieter der Webseite keinen Einfluss hat. Aus diesem Grund kann der Anbieter für diese Inhalte auch keine Gewähr übernehmen. Die auf dieser Webseite veröffentlichten Inhalte, Werke und bereitgestellten Informationen unterliegen dem deutschen Urheberrecht und Leistungsschutzrecht. Jede Art der Vervielfältigung, Bearbeitung, Verbreitung, Einspeicherung und jede Art der Verwertung außerhalb der Grenzen des Urheberrechts bedarf der vorherigen schriftlichen Zustimmung des jeweiligen Rechteinhabers. Durch den Besuch des Internetauftritts können Informationen (Datum, Uhrzeit, aufgerufene Seite) über den Zugriff auf dem Server gespeichert werden. Es werden keine personenbezogenenen (z. B. Name, Anschrift oder E-Mail-Adresse) Daten, gespeichert. Sofern personenbezogene Daten erhoben werden, erfolgt dies, sofern möglich, nur mit dem vorherigen Einverständnis des Nutzers der Webseite. Eine Weitergabe der Daten an Dritte findet ohne ausdrückliche Zustimmung des Nutzers nicht statt.
























































































































































































































































































